Description
This comprehensive studio is a re-imagination of the Vancouver Art Gallery as an urban proposal, which aims to connect the gallery to the street and the existing urban fabric. As a gesture back to the city, the Art Gallery is partially lifted and has a light touch to the ground. Growing as it ascends to gain more square footage in the interior as well as creating sheltered public space on the ground level. The Gallery was designed so that those passing by would be teased with the art it contains and through layer of transparency the interior content is revealed.
Esquisse
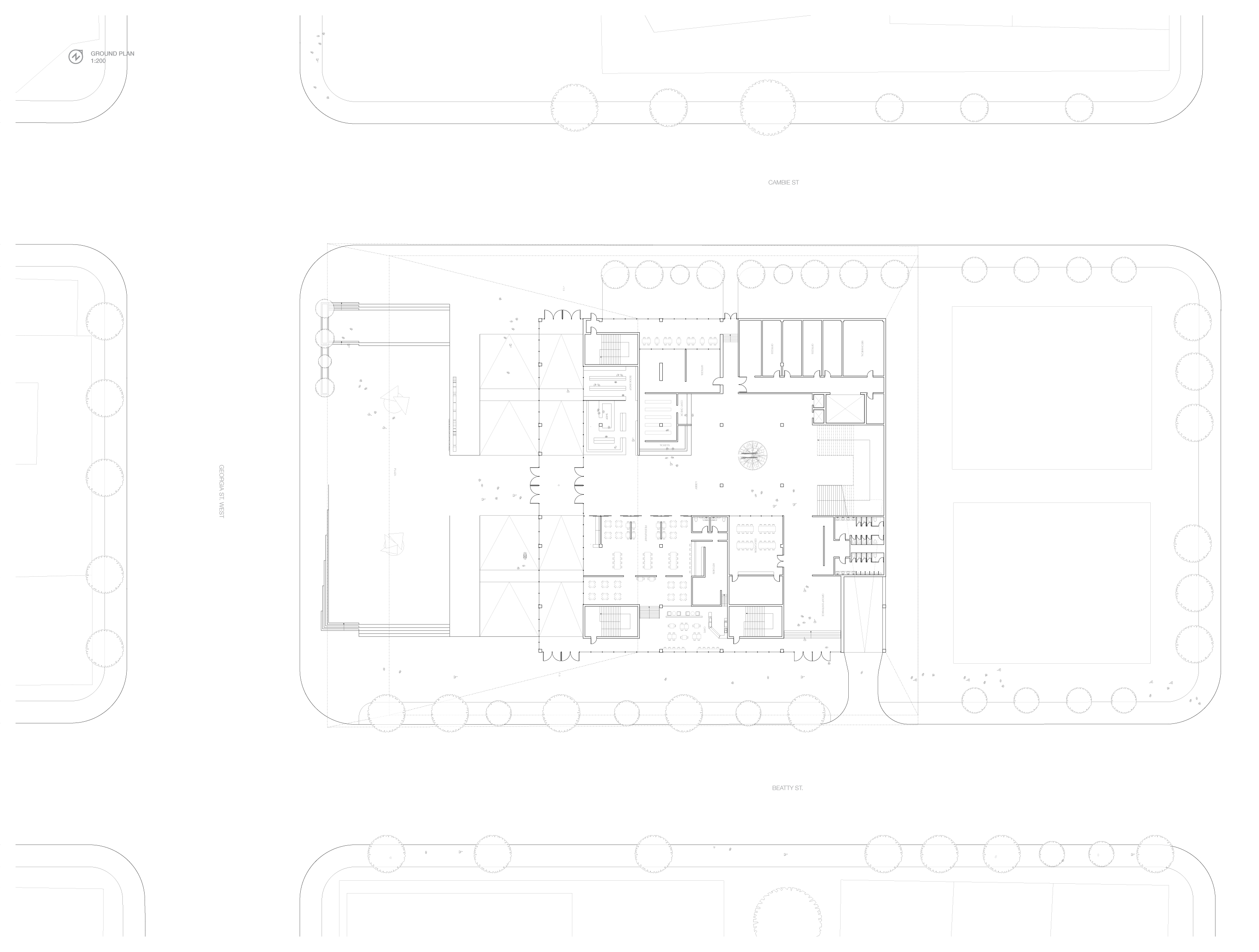
Site Plan
The site is located at the intersection of three neighborhoods: Yaletown, Chinatown and Gastown. Situated just off of West Georgia and Cambie Street, spanning a block down on to Beatty Street.
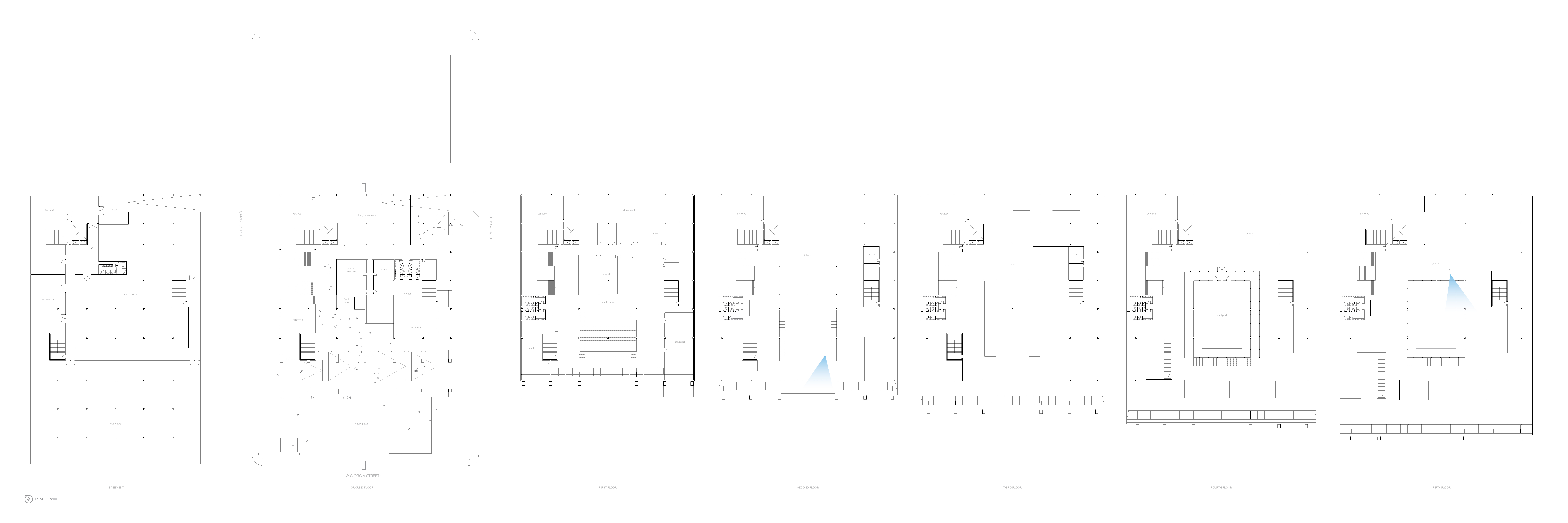
Plans
Iterations
Like any project, this project grew from various iterations, outlined below are snapshots of various stages and portions of what was previously explored.
Transverse Section
Roof Detail A-1

Floor Detail B-1

Balcony Detail C-1

Credits
Vince Castanon


















