Brief
A precedent study of an existing building, where the project seeks to use analytic drawing and modeling completed in Revit as a means of reconstructing the design process. Through that revealing and reestablishing the thought patterns that formed the buildings design priorities.
Outcome
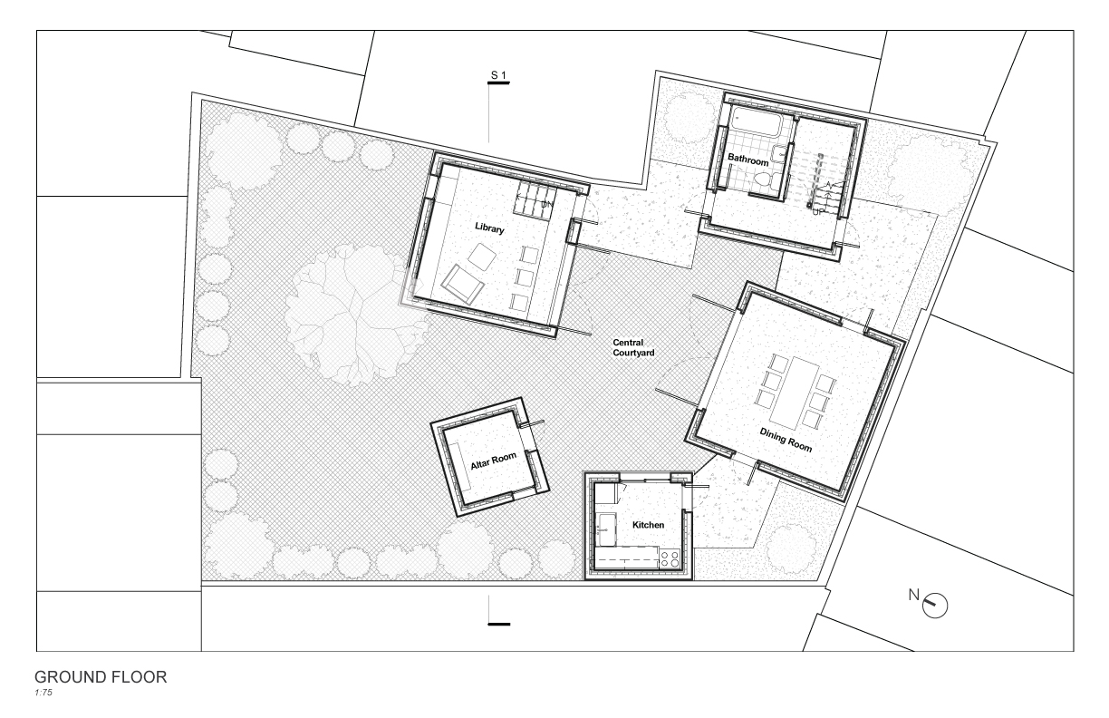
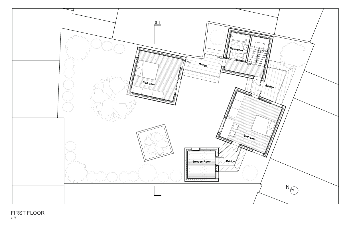
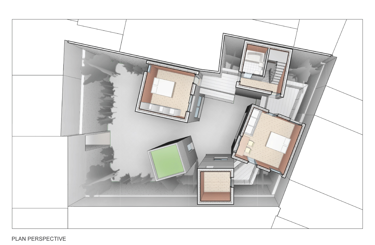
Through this precedent study, I learned how to use Revit to produce various drawings and renders. More importantly I learned how this building is heavily anchored by its interesting blend of interior and exterior spaces. Where traveling from one programmatic element to the next requires one to move from an interior to an exterior space, or vice versa.
Diagram
Plans and Sections













