Description
The Centre for Architecture Media & Politics is an institute, which advocates for multi-disciplinary design and is committed to research that challenges the role of today’s architecture. Situated in Gastown, the emerging tech hub C.A.M.P is also a few blocks away from the downtown Eastside. Responding and acknowledging the multitude of communities that utilize this area, the building incorporates Transitional Housing program for youths.
Transitional Housing for youths is a bridge between a homeless shelter and that of a permanent shelter. Its goals are to offer temporary residence as well as support and structure for those who are transitioning. The program of the C.A.M.P would offer training opportunities for the residence, giving them skills for the work force, or simple life skills to allow them to live independently again.
Site
The site is currently located on an empty lot in between two buildings with an old façade held up by supports. The gentrified Gastown focuses heavily on conserving heritage buildings and is home to a diverse group of people. Creating this interesting negotiation of space between the new, the old and its inhabitants.
Process
Having two groups of occupants, I began looking at ways to integrate them together cohesively. One faucet of investigation led me to textile weaving, more specifically satin weaves.
Breaking down a traditional weave into a microscopic level, the weave consist of a warp, which is the structural and vertical piece. The weft, is the horizontal element, which wraps around the warps. A traditional plain weave would follow the repetitive pattern where the weft would wrap around each warp. The weft of the satin weave however would only interact with the warp after skipping two warps.
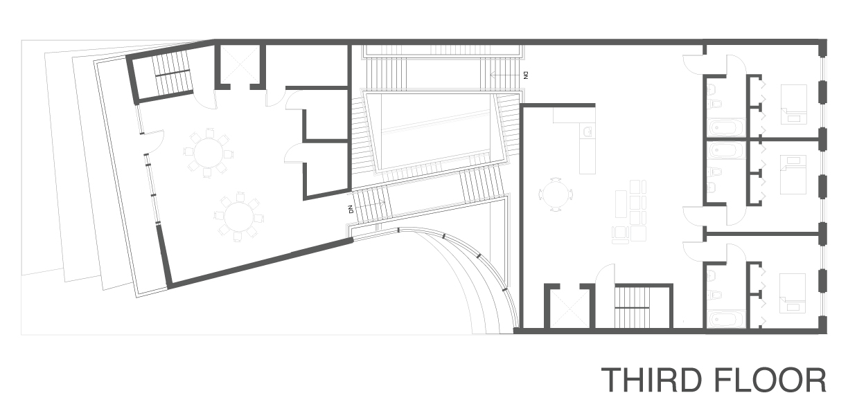
Carrying this idea forward into program organization, I set up the main atrium of the building, as the “warp.” I then use the programmatic elements of both C.A.M.P and Transitional Housing as the “weft,” and begin to weave them together. Setting the shared and more public spaces on the ground floor. Then on the subsequent floors stacking the same type of program from both the C.A.M.P and Transitional Housing on the same side until the third instance where it interacts with the warp by flipping over to the other side.
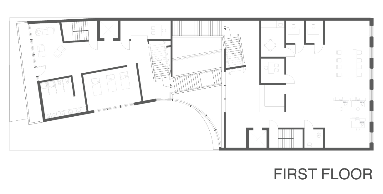
Program
The program is focused on the three different programmatic conditions of C.A.M.P, Transitional Housing, and the shared.

Form
The C.A.M.P is an infill situated besides two building, and thus to attain more light an atrium is inserted to act as a light well. The floors wrap around this light well with the upper most floor angled 23 degrees away from the Woodward’s tower, capitalizing on the available panoramic view of the mountain.
















