Brief
To investigate principles and methods of various methods of construction, building materials and construction systems through details.
Tall Wood Construction
Concrete Construction, Clad and Exposed Approach
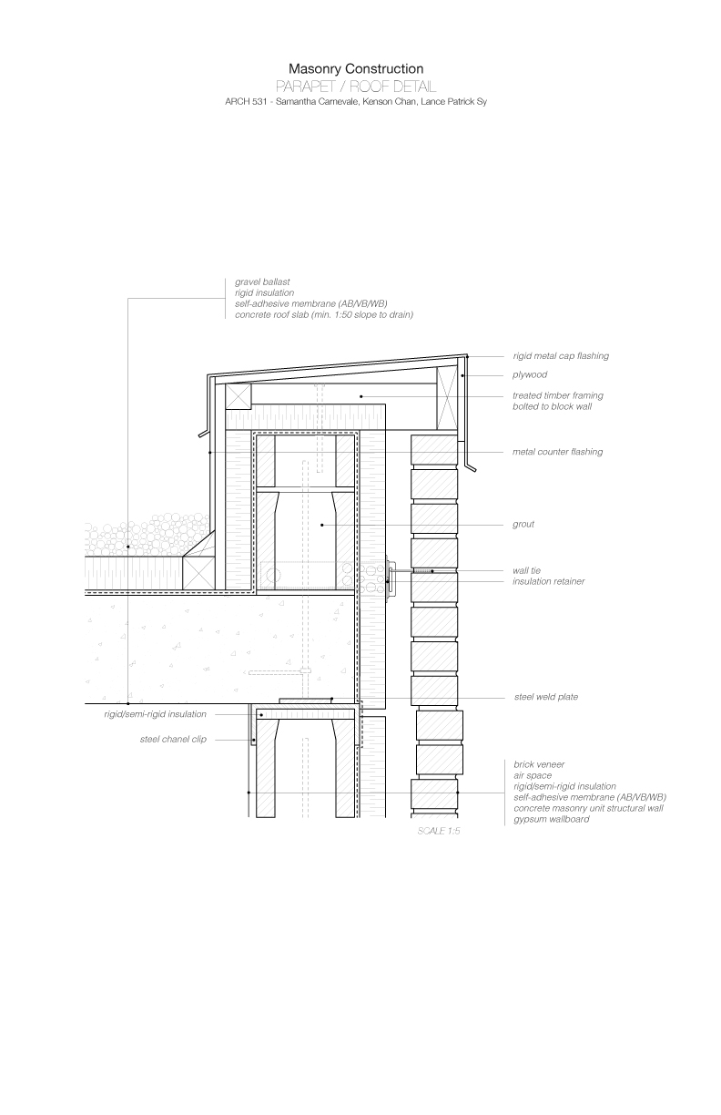
Masonary Construction
Credits
Lance Patrick Sy







