Description
A Pair of clubs is a residential unit which houses two occupants living very separate lives and has different needs. In addition, each occupant would be assigned specific artifacts giving potential opportunities for the occupants to converge, overlap or mingle.
Site
The site is situated on a corner lot with the back having access to a lane way.
Process
I began my investigation by creating personas defining the two occupants, and the artifacts they own.
Moving forward I then sketched and designed in section. Having two volumes stacked on top of each other, each representing the two separate spaces of the occupants. I began to play with the idea of collapsing the spaces together to create this shared interstitial space where all the private amenities are located. Then proceeding to sheer the two voids to create more open space above and sheltered space below.
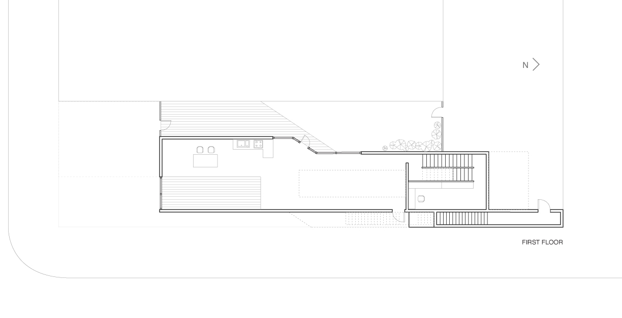
The bottom portion of the building is grounded, making it much easier accessibility wise and better suited for the older occupant. The formal gesture of sheering the two units also provide a sheltered porch and lawn area for the dog.
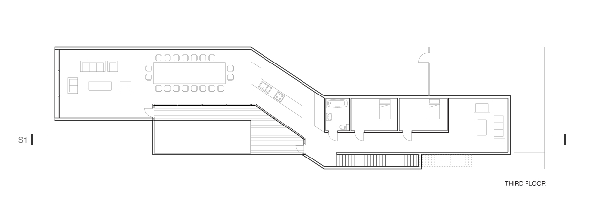
The top unit is tailored to the younger occupant as the majority of the time spent at home is within the privacy of his own room. When he does host social events, the top floor is utilized to do so.
Plans and Sections
A render of the stage for four in the elderly occupant, where the pool of the younger occupant illuminates it.
The view of the shared interstitial space where the younger occupant can also view the Les Meninas of the elderly occupant
Duration:
Three weeks.














